exklusives projekt an unverbaubaurer landwirtschaftszone in safenwil

das bestehende gebäude wurde rundum saniert und erhielt einen anbau, wodurch das 8.5 -zimmerhaus für eine familie mit drei bis vier kindern ausgelegt ist.

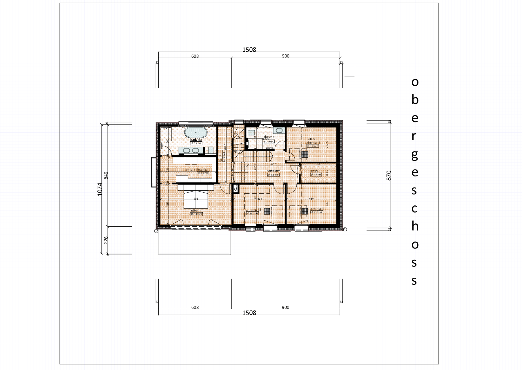
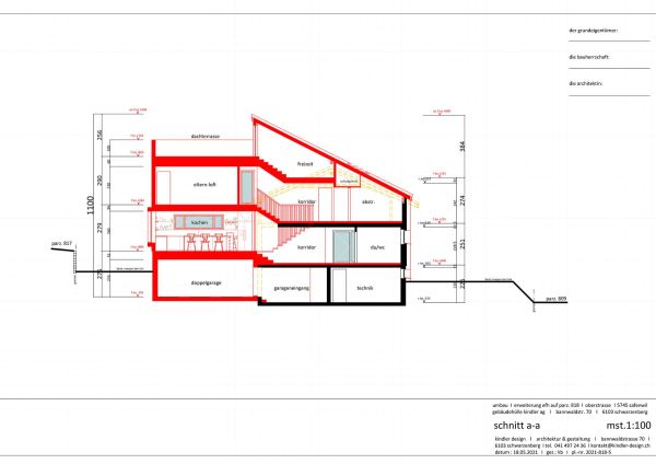
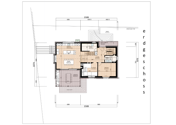
die fassade wurde in horizontaler und vertikaler holzschalung ausgeführt. durch die neu gewonnene kubatur ergibt sich im erdgeschoss ein grosser wohn- & kochbereich mit einer kochinsel zum frühstücken, im obergeschoss ein masterbedroom für die eltern mit begehbarem kleiderschrank und badezimmer. die dachfläche kann als terrasse benutzt werden, um die letzten sonnenstrahlen einzufangen. der neue teil des untergeschosses wurde zu einer doppelgarage mit einem sektionaltor. des weiteren findet man im unteren geschoss des bestehenden gebäudes einen büroraum für das homeoffice, zwei keller- wie auch den technikraum. das erdgeschoss ist durch die spannenden niveaudifferenzen, den schicken einbauten und grossen fassadenöffnungen, wie auch der modernen tagestoilette, perfekt um gäste zu empfangen. im oberen geschoss befinden sich nebst dem elternzimmer auch alle zimmer für die kids, diese sind jeweils mit einer schlafgalerie vorgesehen um den platz zum spielen zu gewährleisten. die kinder teilen sich zusammen eine nasszelle mit dusche. im dachgeschoss ist ein offener raum vorzufinden, den man frei gestalten kann, zum beispiel als bibliothek oder musikzimmer.

vitueller rundgang

vorher

No images were found.

pläne

No images were found.

nachher

Es wurden keine Bilder gefunden.